El Ayuntamiento de Castelldefels presentó a principios de año la planificación del proyecto de construcción de 72 viviendas de alquiler asequible en el solar municipal ubicado en la calle Pietat y que, según el cronograma definido por el IMPSOL (entidad pública que tiene la cesión de los terrenos y que se encargará de su construcción), se planifica que las obras comenzarán en breve. De hecho, las tareas de limpieza y desbrozo de la zona ya comenzaron hace unas semanas.

¿Cómo serán las viviendas?
Por el momento conocemos la poca información pública que hay en la web del Área Metropolitana de Barcelona, pero Castelldefels Digital ha podido acceder a las más de 3.700 páginas de documentación de los arquitectos y obtener algún que otro detalle interesante.
El edificio se dividirá en dos unidades iguales separadas para generar transparencia y continuidad en el espacio público. Los arquitectos han tenido en cuenta el valor patrimonial del conjunto histórico con una configuración muy compacta y contenida para relacionarse con el castillo. La construcción tendrá un coste de 7.248.789€ + IVA.


Las 72 viviendas estarán integradas en un entorno urbano y natural potenciando la idea de vivir en un parque. Se plantean 3 tipologías en función del número de dormitorios, con un porcentaje de 34% viviendas de 3D, un 39% de 2D, un 14% de 2D+ y un 12% de 1D.


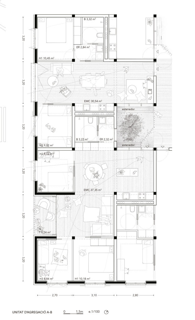
La organización tipológica se distribuye por coronas. La corona interior incluye el núcleo de circulación y 4 patios, donde se ubican los tendederos. Las zonas húmedas se ubican en la corona central. Las habitaciones se ubican en la corona perimetral.



¿Y cuál será el precio de los alquileres?
Por el momento se desconoce la lista de precios de alquiler de las 72 viviendas, que se presentará más adelante. Pero sabemos los precios que el IMPSOL (entidad pública que se encargará de su construcción) está poniendo en promociones de viviendas de alquiler en ciudades de la comarca como, por ejemplo, en Gavà. En nuestra ciudad vecina en breve estrenarán una promoción de venta y alquiler, donde los precios de alquiler parten desde los 435€ (2 habitaciones y 48,70m2) hasta algo más de 600€ por los que tienen más características. El mismo patrón de precios se repite en promociones del IMPSOL por el área metropolitana. Castelldefels no será una excepción.
Para hacerse con uno de estos alquileres se realizará un sorteo con las personas interesadas y cumplir una serie de requisitos que todavía se desconocen. La alcaldesa de Castelldefels, Maria Miranda, señaló a principios de año por donde irán los tiros: «estará dirigida a los colectivos que tienen más dificultades de acceso a la vivienda, como es el caso de los jóvenes, con dificultades para emanciparse, pero también para otros colectivos vulnerables». En el sorteo que se ha realizado en Gavà se ha priorizado a la población de su municipio y el principal requisito era acreditar que la persona no ingresara más de 26.560€ al año.
Más información
Esta es toda la información que conocemos hasta la fecha (8 de octubre) y que poco a poco se irán desvelando más detalles de esta promoción. Desde Castelldefels Digital iremos informando de cualquier novedad al respecto, si quieres ser la primera persona en recibir las futuras novedades puedes darte de alta gratuitamente en nuestro canal de WhatsApp. Y también seguirnos en Instagram, Facebook, Telegram o Twitter.

